Чернобыль
вернуться

Щербак Юрий Николаевич

Шрифт:

Красочный этот альбом мне подарил в пустом административном корпусе Припяти, в ее "Белом доме", Александр Юрьевич Эсаулов - заместитель председателя припятского горисполкома, один из героев нашей повести. Мы ходили с ним по безжизненным коридорам, заглядывали в опустевшие кабинеты: сдвинутая мебель, брошенные на пол бумаги, открытые сейфы, кучи пустых бутылок из-под пепси-колы в помещениях, где заседала Правительственная комиссия (на память я снял с дверей бумажки с торопливыми надписями - кто где размещается), подшивки газет, оборвавшиеся на дате "25 апреля", засохшие цветы в вазонах… И над всем этим - одуряющий запах дезинфекции, чтобы крысы не размножились.

В тот день мы с Эсауловым были единственными жителями покинутого красавца города. Мы - и несколько милиционеров из патрульной службы, охранявших брошенные жителями дома.

А въезд в город украшал не парк с аттракционами, а плотная изгородь из колючей проволоки, оснащенная системой специальной сигнализации, чтобы непрошеным мародерам не удалось проникнуть сюда, в Зону, поживиться радиоактивными вещами, оставленными в тысячах квартир. Выло и такое.

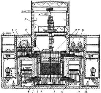
АЭС, реактор РБМК-1000 и другое

Общий вид реактора РБМК:

1 - опорная металлоконструкция;

2 - индивидуальные водяные трубопроводы;

3 - нижняя металлоконструкция;

4 - боковая биологическая защита;

5 - графитовая кладка;

6 - барабан-сепаратор;

7 - индивидуальные пароводяные трубопроводы;

8 - верхняя металлоконструкция;

9 - разгрузочно-загрузочная машина;

10 - верхнее центральное перекрытие;

11 - верхнее боковое перекрытие;

12 - система контроля герметичности оболочек твэлов;

13 - главный циркуляционный насос;

14 - всасывающий коллектор;

15 - напорный коллектор.

Из статьи К. Полушкина "Атомный богатырь", журнал "Наука и жизнь", 1980 год, N11:

"Широкое внедрение АЭС в энергетику определяется рядом причин. Остановимся на наиболее существенных из них.

Это прежде всего усиливающаяся концентрация промышленности и, следовательно, увеличивающееся энергопотребление в наиболее освоенных центральных районах страны, где запасы органического топлива и гидроресурсов использованы уже практически полностью. Транспортировка сюда органического топлива от далеко расположенных мест его добычи экономически невыгодна, так как необходимо перевозить колоссальные количества топлива, ведь для работы только одной ТЭС (тепловой электростанции) мощностью 1 млн квт требуется около 10 тыс. тонн каменного угля в сутки… В то же время в реакторе на получение тепла, необходимого для суточной мощности АЭС мощностью 1 млн. квт, расходуется 100 кг ядерного горючего. Именно поэтому стоимость электроэнергии, полученной на АЭС, работающих в европейской части Советского Союза и некоторых отдаленных районах, ниже стоимости энергии, вырабатываемой тепловыми станциями.

Существенную роль играют и экологические факторы. Электростанции, сжигающие нефть или мазут, выбрасывают в атмосферу сернистый ангидрид, углеводороды, окислы азота, серы, свинца, ртути, а ТЭС, работающие на каменном угле, - кроме того, еще и огромные количества золы.

…Благодаря… мероприятиям (по обеспечению безопасности работы АЭС.
– Ю. Щ.) радиоактивная обстановка во внешней среде в районе расположения АЭС практически не отличается от естественной.

…Сейчас в нашей стране на ближайшие 10-15 лет определились два основных направления в развитии атомной энергетики: одно базируется на реакторах водо-водяных с корпусами под давлением (типа ВВЭР - водо-водяной энергетический реактор), а другое - на канальных уран-графитовых реакторах (типа РБМК - реактор большой мощности, канальный). В уран-графитовых реакторах канального типа… замедлителем служит графит, а теплоносителем - вода.

…Одно из самых важных требований, предъявляемых к ядерным энергетическим реакторам, - безопасность АЭС во всех режимах ее работы, как нормальных, так и аварийных… Должно быть обеспечено надежное прекращение цепной реакции деления при любых аварийных ситуациях; надежное охлаждение активной зоны в нормальных эксплуатационных, а также аварийных режимах, связанных с выходом из строя различного оборудования… Гарантировать выполнение всех этих условий призвана система управления и защиты (СУЗ) реактора.

…Исследование аварийных ситуаций, связанных с выходом из строя технологического оборудования, показало, что в ряде случаев нет необходимости останавливать реактор, а достаточно снизить его мощность до безопасного уровня. Сохранение энергетического режима существенно улучшает технико-экономические показатели АЭС.

…В результате исследований определены признаки обнаружения аварий, алгоритм срабатывания аварийной защиты, температурный режим тепловыделяющих элементов, схема, параметры и алгоритм срабатывания системы аварийного охлаждения реактора… Все эти данные используются для управления атомной электростанцией, которое осуществляется централизовано с помощью информационно-вычислительного комплекса "Скала".

Следует подчеркнуть, что весь комплекс принятых мер обеспечивает возможность надежной и безопасной эксплуатации энергоблоков с реакторами РБМК-1000".

Еще одна схема реактора РБМК-1000

1. Активная зона

2. Пароводяные трубопроводы

3. Барабан-сепаратор

4. Главные циркуляционные насосы

5. Раздаточные групповые коллекторы

6. Водные трубопроводы

7. Верхняя биологическая защита

8. Разгрузочно-загрузочная машина

9. Нижняя биологическая защита

И ещё: "Главный конструктор мощных канальных реакторов, как и атомного реактора нашей первой АЭС, - академик Н. А. Доллежаль; научное руководство всем комплексом работ, связанных с созданием реактора этой серии, осуществлял академик А. П. Александров".

Прошу прощения у читателя за столь долгое цитирование сложных и не всегда понятных технических материй. Но то, что казалось нам еще совсем недавно малоинтересным, скучным, ненужным, после аварии вдруг приобрело огромную жизненную значимость для сотен тысяч людей. Журналы, в которых опубликованы статьи, относящиеся к атомной энергетике, после апреля 1986 г., стали библиографической редкостью, ксерокопии ходят по рукам, статьи эти внимательно читаются людьми, которым еще несколько лет тому не пришла бы в голову такая странная мысль - познавать все эти ядерно-технические премудрости.

В первые дни после аварии по Киеву пронеслась красивая легенда, вернее не легенда, а - научно-фантастическая мечта: говорили, что под аварийным реактором, равно как и под другими, находится глубокая - на 100 метров - бетонная шахта и что, мол, через день-два блок опустит под землю - и дело с концом… Кто сочинил эту легенду? Очевидно, те, кто не читал внимательно научно-популярных журналов, не интересовался элементарными вещами, которые необходимо знать каждому человеку, ибо таково непреложное требование нового времени.

…А тот, кого так ждали в Киеве, в Чернобыле, на АЭС, не приехал. Тогдашний президент Академии наук СССР академик А. П. Александров, наш земляк, который так ярко и живо, без бумажки выступал на самых высоких форумах страны, еще в самые застойные времена, который так пылко уверял всех в безопасности атомных станций, - не приехал, не выступил, не разъяснил людям, как могло такое случиться. А ведь его авторитетное слово было просто необходимо в те первые дни тревоги. Не знаю почему, но и на VIII съезде советских писателей в июне 1986 года место А. П. Александрова в президиуме пустовало, хотя у писателей были к нему вопросы, были…

  • Читать дальше
  • 1
  • 2
  • 3
  • 4
  • 5
  • 6
  • 7
  • 8
  • 9
  • ...

Private-Bookers - русскоязычная библиотека для чтения онлайн. Здесь удобно открывать книги с телефона и ПК, возвращаться к сохраненной странице и держать любимые произведения под рукой. Материалы добавляются пользователями; если считаете, что ваши права нарушены, воспользуйтесь формой обратной связи.

Полезные ссылки

  • Моя полка

Контакты

  • help@private-bookers.win