Крейсер «Очаков»
вернуться

Мельников Рафаил Михайлович

Шрифт:

Оба инженера хорошо сознавали эти общие беды сложившейся в кораблестроении системы. Постоянно перегруженные писанием бумаг (вспомним 4000 отношений из-под пера Н. И. Янковского!), задавленные гнетом многоступенчатой канцелярской субординации и бюрократической обрядностью заказов, инженеры не имели никаких возможностей для всестороннего развития „своих практических познаний и способностей”. Крайне полезной была бы организация творческих объединений инженеров, постоянная информация их о деятельности МТК, издание специального журнала и систематическое изучение мирового опыта судостроения путем периодических заграничных командировок.

Осуществление всех этих мер и решительное устранение названных недостатков могли бы, по мнению В. И. Киприановича и А. А. Баженова, существенно ускорить постройку отечественных кораблей и поднять качество работ. [83]Увы, осуществление большинства предложенных мер означало бы серьезную деформацию порядков самодержавно-бюрократического режима с его культом мелочной отчетности и жесткой неповоротливой централизацией. Ничего не в силах был сделать, да, вероятнее всего, и не представлял как за это взяться, и сам А. А. Бирилев, первым занявший вновь учрежденную должность морского министра. Призванный реформировать министерство, он, как верный слуга царизма, подобно Г. П. Чухнину, направил свои основные усилия в иную сторону. Достаточно напомнить о его репрессиях против офицерского состава и матросов отряда контр-адмирала Н. И. Небогатова: все они, даже раненые и героически сражавшиеся, были без следствия и даже до возвращения на родину лишены воинских званий, исключены из службы и отданы под суд за то, что составляли экипажи кораблей, командиры которых сдали их в плен. Довольно конвульсивной была его деятельность в области кораблестроения. Не сумев организовать в министерстве разработку единой кораблестроительной программы и уже тем самым предрешив провал первых планов восстановления флота [84], Бирилев не проявил государственной мудрости и при рассмотрении причин задержки достройки черноморских крейсеров и броненосцев.

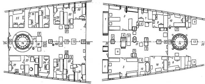
Расположение некоторых помещений, погребов и шахт подачи боеприпасов на крейсере „Память Меркурия”: на жилой палубе в р-не шп. 20–36 (справа) и в районе шп, 100–114 (слева)

1 — рундук для больших чемоданов; 2 — люк ручной подачи 75-мм патронов; 3 — лазарет; 4 — люк в кладовую запасов; 5 — шахта элеватора подачи 152-мм боеприпасов; 6 — люк в винный погреб; 7 — каюта фельдшера; 8 — каюта кондуктора; 9 — рундук для малых чемоданов; 10 — каюта боцмана; 11 — люк схода и ручной подачи 152-мм патронов; 12 — каюта унтер-офицера; 13 — люк в помещение динамомашин; 14 — подачная труба башни 152-мм орудий; 15 — люк в карцер; 16 — люк схода и ручной подачи мелких патронов;' 17 — шахта элеваторов подачи 47-мм патронов; 18 — аптека; 19 — ванная и санузел; 20 — броневая труба защиты кабелей и приводов из боевой рубки; 21 — люк для передачи раненых; 22 — трап на верхнюю палубу; 23 — шахта элеватора подачи 75-мм патронов; 24 — люк в подбашенное отделение; 25 — каюта трюмного механика; 26 — каюта минного механика; 27 — фотолаборатория; 28 — каюта младшего артиллерийского офицера; 29 — каюта младшего врача; 30 — спальня и- кабинет старшего механика; 31 — кагота священника; 32 — каюта офицера; 33 — люк в погреб 152-мм боеприпасов; 34 — каюта младшего минера; 35 — люк в погреб 75-мм патронов; 36 — помещение хронометров; 37 — кабинет и спальня старшего офицера.

Вопрос о задержках возник снова по докладу Н. И. Скрыдлова морскому министру 14 октября 1906 г. Ход достройки этих кораблей (о разгроме „Очакова” карателями стыдливо умалчивалось) „нельзя назвать успешным”, — писал Н. И. Скрыдлов. — И если порт, уже пять лет продолжая строить „Кагул”, обещает зависящие от него работы (как и Николаевский завод — механизмы) завершить ко второй поло вине ноября, то в вопросах артиллерийского и минного вооружения все еще нет ясности. Сроки получения орудий, неоднократно откладывавшиеся, опять срываются, состав вооружения МТК еще не определен полностью, в связи с чем отложена и прокладка кабелей системы управления артиллерийским огнем. Нет еще паровых катеров, не готовы к сдаче, хотя уже и установлены на корабле, динамомашины. Задержками грозит и решение МТК об установке на корабле мощной радиостанции с бронированной рубкой для нее.

Еще более обширным был в докладе перечень задержек по броненосцу „Иоанн Златоуст”, претерпевшему, вместе с „Евстафием”, почти такие же кардинальные изменения по опыту войны, как и строившиеся в Петербурге корабли типа „Андрей Первозванный”. [85]Учитывая полученное в августе 1906 г. указание министра о необходимости скорейшего усиления флота этим новым броненосцем, капитан над Севастопольским портом предлагал ряд организационных мер, перекликавшихся с мнениями В. И. Киприановича и А. А. Баженова. Так, предполагалось для решения части вопросов на месте создать оперативную группу из числа специалистов-судостроителей и офицеров корабля, усилить станочный парк Лазаревского адмиралтейства и непременно добиться распространения петербургских правил о новом судостроении на работы в Николаеве и Севастополе (пока же для улучшения материального положения инженеров приходилось по совместительству назначать их в приемные комиссии порта, что отвлекало их от основной работы).

Важным средством ускорения дела главный командир считал искоренение установившейся практики бесконечных изменений проекта с непрекращающимися переделками чертежей. Для скорейшего решения накопившихся вопросов флот предлагал немедленно командировать в Петербург строителя и командира броненосца, увеличить состав корабельных инженеров на постройке и (наконец-то — признание их важной роли! — P.M.) не менять их до полного окончания работ.

Нужные и полезные все эти меры (очевидно, распространенные и на достройку „Кагула”) не затрагивали коренных пороков казенного судостроения, оставались все же лишь паллиативом.

Все те же вопросы 23 октября 1906 г. обсуждались на совместном заседании кораблестроительного и артиллерийского отделов МТК с участием директора Металлического завода Лесенко и начальника Обуховского завода полковника М. З. Шеманова. По документам этого заседания относительно артиллерии „Кагула” можно понять, что МТК никак не считал себя причастным к задержке в получении орудий. Их неоднократно по приказаниям министерства и распоряжениям ГУКиС передавали на спешно вооружавшиеся корабли Балтийского флота и на владивостокские крейсера. Заказанные же взамен отданных новые 75-мм пушки задерживаются из-за необходимости их первоочередной поставки для крейсера „Адмирал Макаров” и строящихся в Германии миноносцев. 152-мм пушки при особой необходимости можно было бы отправить сразу, но, видимо, сначала следует выполнить на них усовершенствования по опыту войны: изготовить более прочные подъемные дуги и установить механизмы раздельного наведения. Первые орудия завод начнет отправлять с ноября; башенные пушки уже давно отправлены, а башни готовятся к испытаниям.

Что касается пополнения станочного парка в адмиралтействах, то дело это, как было объяснено министру, и вовсе от МТК не зависит. Кредиты, запрошенные Николаевским и Севастопольским портами, при обсуждении проекта сметы были урезаны министерством почти наполовину, а представители государственного контроля и министерства финансов требовали и вовсе их вычеркнуть. В конце концов остановились на минимальных суммах, без которых работы портов могли остановиться: Николаев вместо запрашивавшихся 400 тыс. получал 75 тыс. руб., а Севастополь — вместо 200 тыс. только 59,5 тыс. руб.

  • Читать дальше
  • 1
  • ...
  • 66
  • 67
  • 68
  • 69
  • 70
  • 71
  • 72
  • 73
  • 74
  • 75
  • 76
  • ...

Private-Bookers - русскоязычная библиотека для чтения онлайн. Здесь удобно открывать книги с телефона и ПК, возвращаться к сохраненной странице и держать любимые произведения под рукой. Материалы добавляются пользователями; если считаете, что ваши права нарушены, воспользуйтесь формой обратной связи.

Полезные ссылки

  • Моя полка

Контакты

  • help@private-bookers.win