Броненосец «Наварин»
вернуться

Арбузов Владимир Васильевич

Шрифт:

Одновременно с испытаниями установили и часть брони, а доставленные из Франции с завода Сен-Шамона четыре башенные плиты с прорезями для амбразур в конце кампании прикрепили на деревянную подкладку к каркасам башен.

В действительности Общество Франко-Русских заводов все работы выполнило только в ноябре 1894 г., то есть с задержкой на 18 месяцев, хотя на «Наварине» к тому времени еще не была установлена часть артиллерии. Но за свои просчеты Морское министерство ответственности не несло.

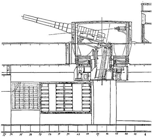
Эскадренный броненосец «Наварин». (Продольный разрез кормовой башни, снарядного и зарядного погребов)

В конце лета 1895 г. для испытания достраивающихся кораблей: — броненосца «Наварин», броненосца береговой обороны «Адмирал Ушаков», броненосного крейсера «Рюрик» и миноносцев № 119 и № 120 под председательством контр-адмирала Б.К. Де-Ливрона (незадолго до этого он успел побыть в должности командира «Наварина») образовали специальную комиссию. Флагманом вновь образованного отряда стал «Адмирал Ушаков». На нем адмирал 15 августа и поднял свой флаг. Около месяца спустя, 12 сентября начал кампанию и «Наварин». В основном испытывали только главные и вспомогательные механизмы, так как артиллерию на корабле установили только летом и она имела множество недоделок.

23 сентября «Наварин» вышел на заводскую пробу машин и определение девиации. Машины в основном обслуживали заводские рабочие. Они сумели довести давление пара до 130 фунтов, и машины развили по 90 оборотов. Но, несмотря на то что машины «работали плавно и не грелись», броненосец развил скорость чуть более 15 узлов.

Следующий выход в море состоялся 29 сентября. Совместно с представителями Франко-Русского завода провели шестичасовые испытания. Имея водоизмещение 10107 тонн, броненосец развил скорость 16,3 узла. Перегрузка при этом составила 631,4 тонн или 6,6 % от проектного (9437 т) водоизмещения. При более точных расчетах перегрузка корпуса определялась в 274 т, механизмов 308 т, брони 12 т, артиллерии 30 т и снабжения 7 т. 10 ноября прошли официальные испытания. На этот раз при мощности 9194 л.с. (давление 135 фунтов и 94 оборота винта) среднюю скорость на пробе развили только 15,85 узла (правда, на одном из пробегов достигли 16,14 узлов).

Комиссия под председательством главного инспектора по механической части инженер-механика. Н.Г. Нозикова засвидетельствовала, что «пар держался легко, и механизм действовал с постоянным числом оборотов, весьма спокойно и без разогревания».

Испытания окончились, и «Наварин» ушел в Ревель. Там предстояло начать испытание торпедных аппаратов. Произведя несколько выстрелов из каждого аппарата, броненосец вернулся в Кронштадт, и 14 декабря на нем спустили вымпел. Трехмесячная кампания окончилась.

Тактико-технические данные броненосцев, спущенных на воду в период с 1887 по 1896 гг.

Название корабля(страны и год спуска)/ «Трафальгар» «Наварин» «Роял Соверен» «Кайзер Фридрих III» Тактико-технические данные (Англия, 1887) (Россия. 1891) (Англия. 1891) (Германия, 1896) Длина между перпендикулярами (м) 105,2 105,9 1 15,8 115 Ширина наибольшая (м) 22,2 20,4 22,86 20,3 углубление на ровный киль (м) 8,38 7,62 8,4 7,87 Водоизмещение (т) 11940 9476 14500 1 1 152 Коэффициент полноты водоизмещения 0,572 0,58 Отношение длины к ширине 5,04 Отношение ширины к осадке 2,56 Длина пояса по ватерлинии (м) 70,1 69,5 74,5 92 Высота пояса по ватерлинии (м) 1,68 2,13 2,59 Толщина пояса по ватерлинии (мм) 508,406 406,356,305 457,406,356 230,218 Толщина траверзов (мм) 406,356 305 406,356 Толщина брони нижнего каземата (мм) 406 305 50,8, 152 102, 152 Толщина траверзов нижнего каземата (мм) 406 305,254 102 Толщина брони верхнего каземата (мм) 127 127 102,152 Толщина траверзов верхнего каземата (мм) 127 127 Толщина брони башен /барбета (мм) 457 305 431,406 235 Толщина палубной брони (мм) в середине 114 50,8, 64 64 в оконечностях 76,2 76,2 64 76 Толщина брони боевой рубки (мм) 356 254 356 235 Артиллерийское вооружение: число башен (барбетов)(шт) 2 2 (2) 2 число — калибр (в мм)/длина ствола (в калибрах)башенных орудий 4 — 343/30 4 — 305/35 4- 343/30 4- 240/40 (число снарядов на один ствол) (80) Высота осей башенных орудий над ватерлинией (м) 5,33 число — калибр орудий (мм) в казематах 6 120 8 152 10 152 18 150 (число снарядов на один ствол) (125) Число малокалиберных орудий (шт) на корабле 19 18 16 12 на марсах 4 12 8 8 пул. Число и тип механизмов 2 тройн. 2 тройн. 2 тройн. 2 тройн. Число котлов 6 12 8 12 Проектная мощность (л.с.) 8000/12000 9000 9000/13000 13000 Фактическая мощность (л.с.) 12818 9194 13500 Фактическая скорость (узлов) 17,2 15,85 17 18 Нормальный запас угля (т) 900 700 900 650

После испытаний на корабль прибыли рабочие Франко-Русского завода, и достройку продолжили. Работа кипела на всех палубах. Чуть позже «Наварин» поставили в большой Константиновский док и начали окраску днища.

В доке по соседству с громадой его корпуса стояли кажущиеся такими маленькими даже со своими рангоутами броненосец береговой обороны «Адмирал Лазарев» и оставшийся в России на зиму корвет «Минеаполис»- корабль дружественной страны — из далеких Северо-Американских Соединенных штатов. В доке на мостике перед легкой сигнальной мачтой установили штурманскую рубку (ее металлический каркас обшили однодюймовыми стальными листами).

Зимой с 1895 на 1896 гг. на корабле установили броню боевой рубки (сам каркас рубки собрали лишь в ноябре уже во время испытаний), выстрелы и такелаж для противоторпедных сетей, площадки под прожекторы и броневые плиты на каркасы башен. Новшеством на флоте стала установленная на броненосце система управления артиллерией при помощи боевых указателей, спроектированных лейтенантом Степановым. В феврале с корабля сняли четыре 37-мм орудия Готчкисса, а с палубных тумб два десантных орудия Барановского, заменив их шестью 47-мм одноствольными.

Перед началом кампании Металлический завод сдал «в казну» артиллерию, а Кронштадтский порт установил снятые па зиму шесты и полотнища противоторпедных сетей. Одновременно на корабль поставили появившийся на флоте указатель положения руля системы лейтенанта Колбасьева, две электрические лебедки и электрические фонари для сигнализации системы подполковника Табулевича.

Новый броненосец, несомненно, являлся сильнейшим кораблем Российского императорского флота. Но следует учитывать, что от начала проектирования до его вступления в строй прошло семь лет. За это время «Наварин» и его прототип броненосец «Нил» (находившийся в составе английского флота также семь лет) стали устаревшими типами.

  • Читать дальше
  • 1
  • ...
  • 3
  • 4
  • 5
  • 6
  • 7
  • 8
  • 9
  • 10
  • 11
  • 12
  • 13
  • ...

Private-Bookers - русскоязычная библиотека для чтения онлайн. Здесь удобно открывать книги с телефона и ПК, возвращаться к сохраненной странице и держать любимые произведения под рукой. Материалы добавляются пользователями; если считаете, что ваши права нарушены, воспользуйтесь формой обратной связи.

Полезные ссылки

  • Моя полка

Контакты

  • help@private-bookers.win